| RATING | UPTO 400Amp.,UPTO 500V AC OR UPTO 110Amp., UPTO 230V DC |
| CONSTRUCTION | IN AL. ALLOY LM6 |
| GAS GROUP | IIB AS PER IS/IEC:60079-1:20 14, Ex 'd' |
| ZONE | ZONE 1&2 |
| TEMP CLASS | T6 |
| DEG OF PROT | P:66 AS PER IS/IEC: 60529-2001 |
| CIMFR CERT NO | IN/CIMFR/TR20/3190 DTD. 09/11/2020 |
| PESO CERT NO | A/P/MH/104/6734/(P501680) DTD. 21/04/2021 |
| BIS CERT NO | ENDORSEMENT NO. 128 DTD. 19/01/2021 |
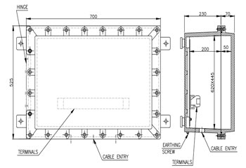
| EARTHING | 1NO. INTERNAL & 2NOS. EXTERNALS | PAINT | EPOXY POWDER COATED LIGHT GREY SHADE 631 OF IS:5 |
| TERMINALS | TO BE SPECIFY, ELMEX/CONNECTWELL MAKE. |
| CABLE ENTRY | TO BE SPECIFY., WITHOUT CABLE GLAND & WITHOUT PLUG |
| HARDWARE | S.S.-304 (ONLY NUTS & BOLTS). |